Omschrijving

Leonard, 1e en 2e verdieping

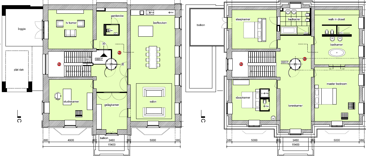
Dit penthouse-maisonnette heeft met circa 325m² woonoppervlakte verdeeld over 2 verdiepingen ongekende mogelijkheden in het invullen van uw eigen woonwensen. Op beide woonniveaus bieden balkons en een loggia rust en privacy of een adembenemend uitzicht. Er is met name in de living area veel ruimte en licht door de hoge plafonds en de vele raampartijen.

U heeft 2 parkeerplaatsen ter beschikking inclusief dubbele berging en een gezamenlijke fietsenkelder. Het appartement is bereikbaar via de lift of de prachtige monumentale trap!

Indeling

Op de eerste verdieping van het penthouse is er de mogelijkheid tot het creëren van o.a. een studie, tv kamer en een royale living/dining.

De keuken zou boven de hoofdentree kunnen worden geplaatst, alwaar u kunt genieten op het balkon van het prachtige uitzicht over de Maas.

Op de tweede verdieping is er ruimte voor een grote masterbedroom met privé dressingroom en badkamer, en kunt u de ruimte verder invullen met bijvoorbeeld 2 logeerkamers die kunnen worden voorzien van een eigen badkamer.

De spectaculaire torenkamer is wel heel bijzonder en herinnert aan de geschiedenis en allure van deze bijzondere villa.

Tuin

Er zijn 2 balkons (17m2 en 5m2) en een inpandige loggia 17m2

Een suggestie voor het tuinontwerp wordt aangeleverd door een bekende tuinarchitect. Bekijk hieronder de eerste uitgewerkte voorstellen: 

Beplantingscollage

Beplantingslijst

Beplantingsplan definitief

Natuurattractiekaart

a

Elevator

Terras

Parking place

CONTACT US

Like Our Work?